Memoria enviada por el estudio de arquitectura. En el actual proceso de expansión de las ciudades lo realmente importante no esta constituido por los recursos financieros, tampoco la materialidad define su carácter y menos algún tipo de estilo o forma.
Hoy, lo esencial radica en el lugar.
Vivir en la ciudad, significa el acceso a infraestructura, agua potable, transporte, espacio público, alimento, educación y cultura, lo cual posibilita al ser urbano a convertirse en humano.
Inscripto en este razonamiento, absolutamente urgente, contemporáneo y universal este pequeño proyecto replantea temas como la densidad, el espacio público, la mejor utilización de la energía y como estos elementos contribuyen a la generación de una identidad nueva.
Así, asunción puede (y debe) re-convertirse en cualquier ciudad del planeta y establecer parámetros mínimos de habitabilidad.
Con escasos recursos financieros reordenamos la grilla de costos de construcción tradicional, y a partir de un riguroso análisis, identificamos que en donde se gasta la menor cantidad de energía es en el soporte (la estructura), ella es recubierta posteriormente con terminaciones, materiales caros, pero reconocidos socialmente como signos de status cuyo el resultado es una completa distorsión entre esqueleto y relleno.
Esto desarma el concepto de integridad, empobrece lo autentico, así como al espacio. Invertir conceptos significa también transgredir, generar contraflujos.
De esta forma… Lo que soporta, realmente estructura, libera y es espacio, este se convierte en forma y es reconocido en la diferencia, por tanto genera una imagen clara y franca, por sobre todo autentica.
Un resultado cargado de dignidad, presenta los materiales en su especifico proceso de uso y trabajo.
Así, en el concepto de heidegger, se habita, se reconoce y se pertenece al espacio, se accede al resultado mejorado que le otorga el actuar contemporáneo de la razón referido al concepto de la vivienda unifamiliar.
Luego algunos comentarios periodísticos…
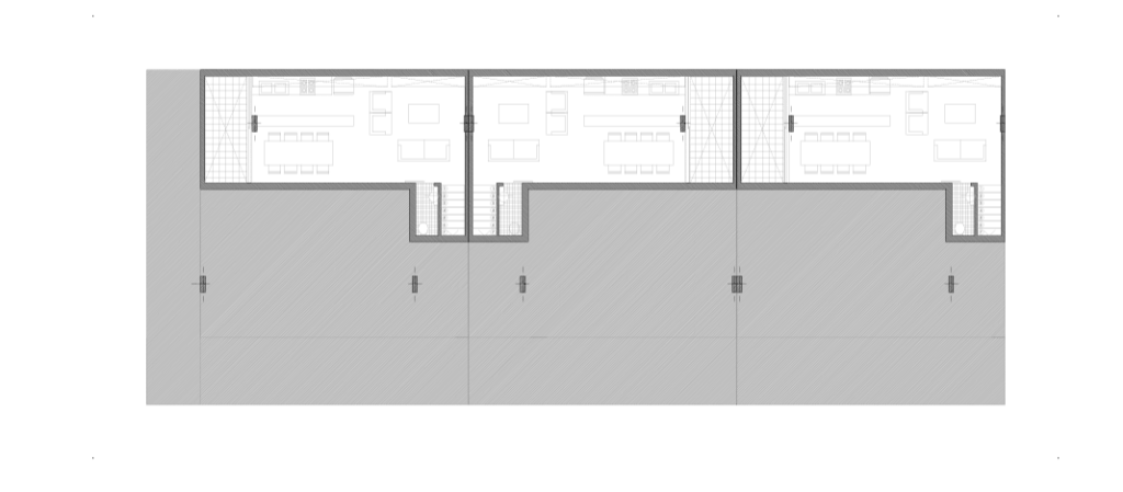
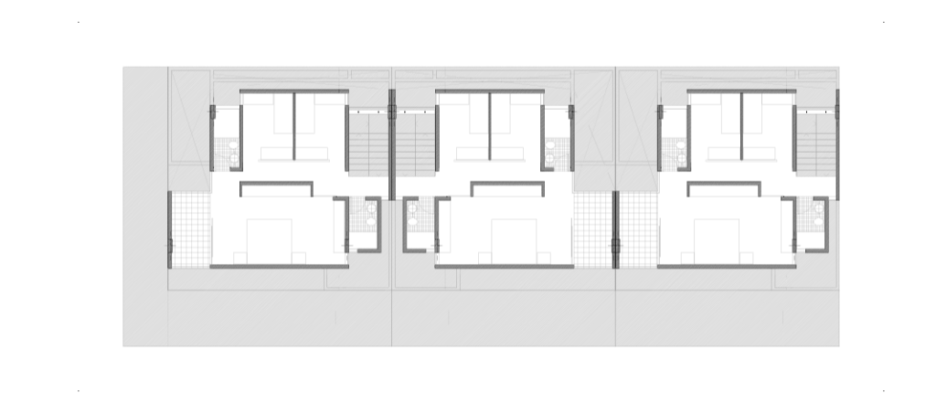
En un solar de 10×30 3 viviendas unifamiliares cada una definida de la manera siguiente un semi nivel, una planta baja, una terraza (ganada), un área íntima y una expansión en terraza a escala urbana. 190m2 construidos, luz exagerada, aire, vistas, relación absoluta con el horizonte y la ciudad.
Usuarios satisfechos, en espacios típicamente paraguayos.

Ficha Técnica:
Nombre de la obra: 3xkb
Ubicación: Bélgica esquina Andrade. Asunción, Paraguay.
Arquitectura: Tda®
Arquitectura:
Miguel Duarte, Sergio Fanego, Larissa Rojas, Adriana Moreno, Carlos Lara, Néstor Robelli.
Colaboradores:
Alberto Martínez, Miguel Duarte, Hugo Lopez, Edgar Fuentes, Fabrizio Durand.
Diseño Estructural: Tda® + Enrique Granada
Calculo Estructural: Enrique Granada
Construcción: Tda® SA
Superficie Construida: 3 Unidades De 180m2 C.U. 540m2 Total.
Año de Diseño: 2014
Año de Construcción: 2014
📷 Federico Cairoli | @federicocairoli
@tdapy | tdapy.com | tdarq.blogspot.com
Montealto 4545 casi Ramos Alfaro | +59521646109 / +595981860546
Luque, Paraguay.


















