Memoria enviada por el estudio de arquitectura. ¿El jardín completa la casa o la casa completa el jardín? El proyecto propone conformar casa y patio de manera continua e indivisible, como dos mitades. El patio alberga un jardín, no como un área residual al fondo o al frente del terreno, sino un jardín que acompaña y envuelve la construcción, incluso en un terreno comúnmente estrecho.
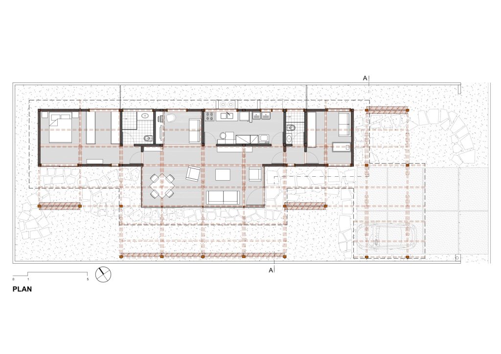
Los espacios internos se alinean en un bloque único y lineal, abriendo paso para que la naturaleza se expanda. Garaje, suite/consultorio, sala, cocina y la suite principal están organizados de manera continua, como un flujo natural. La sala está proyectada hacia el exterior, transformándose en una caja de vidrio inmersa en el verde, permitiendo que el paisaje invada y ocupe el interior.
Asociada a la mampostería, la estructura modular de madera (determinada por la longitud promedio de los durmientes, 2,80 m) fue montada con piezas de durmientes ferroviarios reutilizados: pilares, vigas y cabrios sostienen el techo de tablones cubiertos por tejas metálicas. Cada pilar es un tutor para las enredaderas que suben y se entrelazan, transformándose en un techo verde que crece y avanza. Las plantas se extienden por las paredes y cubren el techo, creando un refugio donde la casa, poco a poco, desaparece, siendo engullida por la vida que florece.
La arquitectura puede ser una herramienta poderosa para cambiar nuestra relación con el clima. El modelo actual de construcción es extractivista, marcado por una lógica de destruir para construir.
El proyecto propone un equilibrio: mitad madera, mitad sistemas convencionales. Utilizar durmientes ferroviarios y la madera de jequitibá reutilizada en el techo es una forma de dar nueva vida a un carbono ya fijado e impedir más destrucción.
Construir así es crear un ciclo positivo, donde la arquitectura no solo sirve al hombre, sino también a la tierra que lo sostiene, integrando la vida y la naturaleza en una misma estructura.
Ficha Técnica:
Nombre de la obra: CASA DE VIRGINIA
Arquitectura: Márcio Flávio Motta
IG @marciomottaarq
Ubicación: Juiz de Fora, MG, Brasil.
Superficie construida: 200m²
Año: 2014
Producción: José Leonardo Afonso
Asistente de producción: Bernardo Barcellos
📷 André Miguel Coronha @andrecoronha
Galería de fotos Casa de Virginia:


































