Memoria enviada por el estudio de arquitectura. Este proyecto forma parte de un conjunto de 3 viviendas que se nos encargó en un nuevo desarrollo urbano que se está consolidando en las afueras de La Plata.
La morfología de esta casa se basa en volúmenes macizos en donde los ladrillos dibujan una grilla que se descompone en ciertos lugares y permite el paso de la luz.
La horizontalidad del hormigón funciona como fuelle entre el ladrillo y la cubierta. En ella se buscó generar un juego de inclinaciones que, alternándose, logran por un lado jerarquizar el acceso a la vivienda y por otro captar la luz del noroeste, dándole más luminosidad a la casa en los ambientes principales.
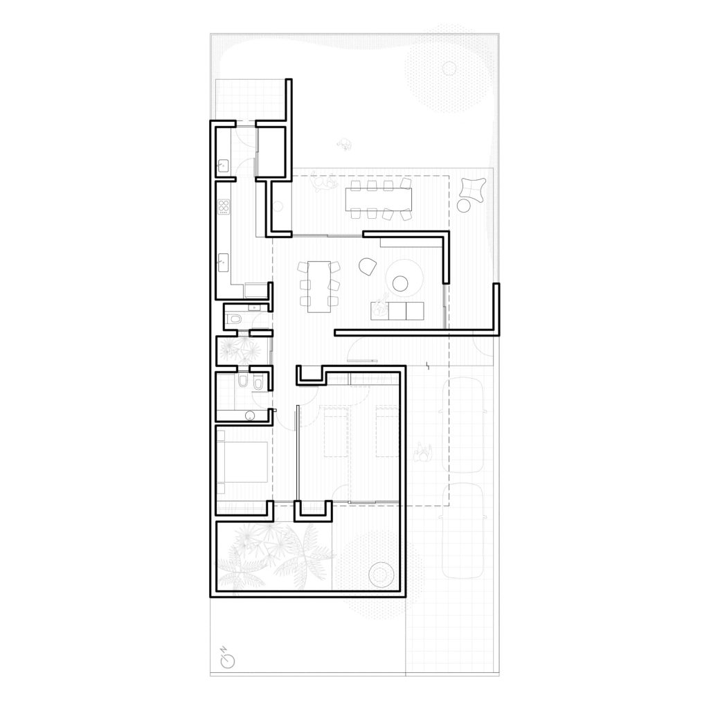
Diferentes tipologías de patios responden principalmente a necesidades y características de usos propios de la vivienda. Cada espacio de la casa se encuadra y se completa con su expansión, cada lleno con su vacío.
Ficha Técnica:
Nombre de la obra: CASA GRID
Arquitectura: Estudio VA Arquitectos
web: www.va-arquitectos.com.ar
www.instagram.com/estudiova.arquitectos/
https://www.facebook.com/estudiova.arquitectos
Año finalización construcción: 2023
Superficie construida (m2): 104m2 cubiertos / 27m2 semicubiertos.
Ubicación: Gorina, La Plata (Argentina)
Programa: Vivienda Unifamiliar
–
Arquitecto a cargo: Abadie Federico, Vicente Prieto Pablo
E-mail: estudio@va-arquitectos.com.ar
Créditos fotógrafo: Luis Barandiarán
Sitio web fotógrafo: http://www.luisbarandiaran.com/ – https://www.instagram.com/luis_barandiaran/








































