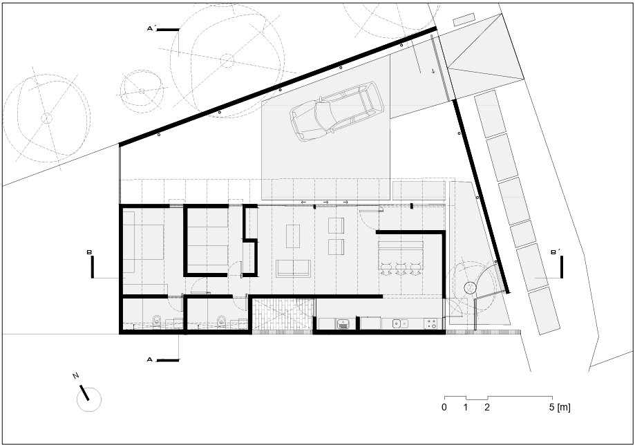
Memoria enviada por el estudio de arquitectura. El encargo consistió en realizar una casa con patio. En un terreno de forma irregular de 200 m2, y un árbol de Lapacho rosado dentro de la propiedad y otros árboles nativos en el predio baldío del vecino.
Las regulaciones municipales permiten ocupar hasta el 75% de los lotes en esta zona. Entendíamos que la forma más económica de construir la casa era de hacerla en un solo nivel es así que la misma ocupa el 50% de la superficie total del lote, se abre a un patio longitudinal de forma irregular al Noreste y toma prestada las vistas de las copas de los frondosos árboles del vecino, una batería de servicios al sur oeste protegen a la casa de la orientación más húmeda y calurosa en un clima sub-tropical.
La intervención se puede entender con tres elementos, dos muros que dan privacidad y el volumen de la casa, la lógica del sistema constructivo responde a la tirantería de madera de reforestación, hecha a partir de 3 unidades de puntales de 3mx3m y 2,80m de largo que se añaden para conseguir un mayor largor e inercia debido a la longitud del techo en el sentido trasversal. Los puntales son utilizados comúnmente en las obras civiles para la construcción de los encofrados de hormigón armado y luego se descartan por su economía
y vida útil limitada, estos puntales fueron en parte utilizados para el encofrado del canalón de hormigón que cumple la función de techar las áreas húmedas y área técnica y recibir las aguas de lluvia para enviarlas a un reservorio de agua.


Un pilar en ̈V ̈ de puntales en el acceso dota de rigidez al conjunto de madera.
El proceso de la construcción de la casa involucró a varios obreros y artesanos que aportaron sus conocimientos técnicos para lograr la utilización de materiales en su condición natural y otorgar calidez y atemporalidad a la casa al igual que los mismos son los resultados de los procesos constructivos artesanales con menor impacto ambiental y económico.



Ficha Técnica:
Nombre de la obra: Casa En San Miguel
Estudio de Arquitectura: NAVE ARQUITECTURA + MARCOS MARTÍNEZ
IG https://www.instagram.com/nave_arq.py/
Principales: Arq. Kike Martinez + Arq. Marcos Martinez
E-mail de contacto:
guidomartinezyambay@gmail.com , http://marcosmartinezyambay@gmail.com
Año de construcción: 2021
Área construida: 100 m2
Ubicación: Barrio San Miguel, San Lorenzo , Paraguay
Colaboradores: Isidro Martinez, Ramon Arguello, Don Sanabria, Gustavo Liuzzi, Oshua Ramos.
Galería de fotos Casa en San Miguel:


























